发布日期:2026-02-26 11:04 点击次数:191

这些年回梓乡,放眼望去全是贴着红白瓷砖、顶着欧式圆柱的“小洋楼”,看多了总以为缺了点中国东说念主的滋味。其实,信得过长在审好意思点上的农村豪宅,从来不是靠堆砌石材,而是那一抹藏在黛瓦白墙里的时髦。
今天,我要带寰球看一套新录取合院。它占地18.6米×19.5米,天然独一两层,却通过巧妙的围合贪图,把中国东说念主的家景尊荣和生活情味体现得长篇大论。好多东说念主看完图纸皆惊叹:若是在城里买房是糊口,那回梓乡盖这么一栋合院,才叫生活!

一、 开荒外不雅:黛瓦白墙,传统与当代的碰撞
从遵守图上看,这套屋子接受了经典的苏式开荒元素,但去掉了繁琐的遮挡。
颜色松弛: 灰瓦白墙的配色,不管再过三十年看,仍是经典不外时。
交集有致: 二层局部退台的贪图,加多了开荒的档次感,也为二楼腾出了超大的露台空间。
奥密庭院: 重大的围墙保险了生活的隐秘,关上门等于我方的小全国,这种“围合式”的居住安全感,是独栋别墅给不了的。

二、 平面布局:动静分区,生活功能拉满
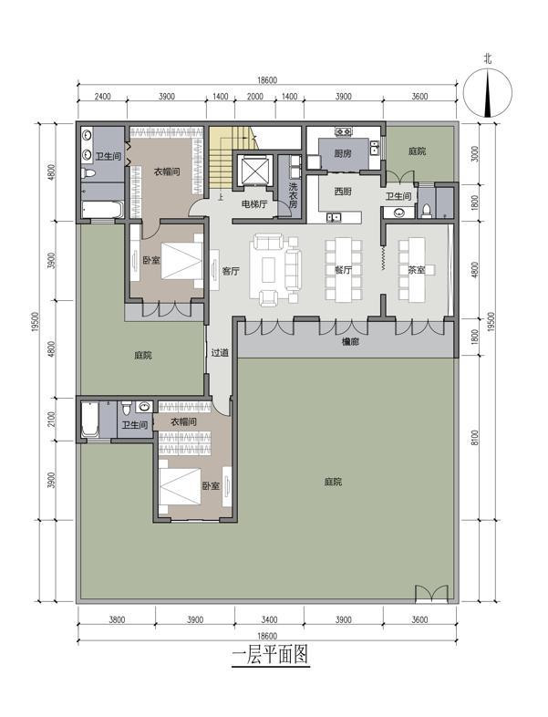
这套屋子的平面图贪图特别稳重,充分斟酌了农村生活的实质需求。
1层:待客与安养的好意思满结合
大面积庭院: 进门即是盛大的庭院,不管是种花种菜,如故曝晒谷物,空间皆绰绰多余。
双卧室贪图: 一层建立了两个卧室。西侧的套间带落寞卫生间和衣帽间,开云官方app下载特别适结合为父老房,免去了老东说念主爬楼梯的麻烦。
超大横厅: 客厅、餐厅一体化贪图,齐集北侧的中西厨,动线通顺。家里办酒筵、宴客吃饭,空间统共够大。
特点茶馆: 挑升辟出的茶馆正对庭院,舒坦时焚香品茗,这才是向往的生活。

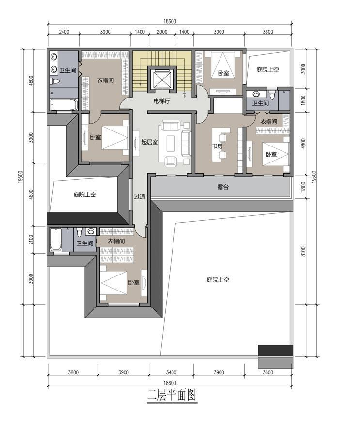
2层:私享空间与失业露台
起居室: 楼梯口等于起居室,是家庭成员里面换取的小六合。
{jz:field.toptypename/}功能套房: 二层设有三间卧室。南向卧室自带大露台,清早推窗即是好意思景。
多功能书斋: 落寞书斋贪图,不管是居家办公如故孩子写功课,皆能互不搅扰。
L型露台: 超大的转角露台是点睛之笔,不仅透风姿光一流,更不错打变成空中花坛。

三、 贪图亮点纪念
自带电梯位: 斟酌到房屋的长期使用,图纸预留了电梯厅,哪怕到了晚年,高下楼也轻简短松。
南北通透: 房间多处掀开窗,尤其是正对庭院的一侧,保证了每一层皆有绝佳的光影遵守。
传统规制: 初学处的影壁和门廊贪图,顺从了中国传统的进门礼节,显得家风安谧。
四、 为什么合院更合适农村?
好多一又友纠结是盖独栋如故合院。其实,合院的上风在于“多庭院空间的布局”:
防风防尘: 四周开荒和围墙能有用违背风沙。
邻里妥洽: 既保证了自家生活的隐秘,又在视觉上形成了一个完整的家眷气场。
风水聚气: 这种“四水归堂”的样子,在传统文化中寓意着招财聚气,家和万事兴。

【结语】 在梓乡盖一栋这么的合院,不单是是盖了一座屋子,更是安放了一家东说念主的乡愁。若是你也厌倦了千人一面的欧式别墅,不妨斟酌一下这种既有顺眼、又有底蕴的新录取合院。