发布日期:2026-03-07 10:14 点击次数:136

传统的农村自建房常濒临采光难、布局乱、千人一面的无言。如安在180平米支配的屋基地上,既保遗留统合院的巧妙性,又领有当代别墅的通透感?
这套面宽11.4米、深度16米的建筑决策给出了谜底。策画甩掉了死板的方块楼造型,禁受U型围合布局,通过精妙的庭院穿插,终清亮采光与景不雅的极致化垄断。
这不仅是一座骄气居住功能的屋子,更是一个垂直分散、步移景异的袖珍园林。若是您正为回乡建房的决策发愁,这套兼具高颜值与高功能性的新及第合院,完全值得您点赞储藏。

一、 庭院布局:三重递进,家在园林里呼吸
这套户型的中枢灵魂,在于其对“院落精神”的深切解读。策画甩掉了传统农村房单调的平铺直叙,巧妙地垄断U型建筑布局,终清亮大地庭院+内嵌天井+空中露台的三重立体景不雅,实在作念到了窗窗有景,户户不雅花。
1. 南向主院:纳气藏风的家眷精神领地
排闼而入,领先映入眼帘的是规范富足的南向主庭院。这里不仅是建筑的障蔽,更是全家东谈主的户外生存圆心。
场景感: 春日里,这里是父老侍弄花卉、修篱种菜的耕种园;仲夏夜,搬几把竹椅,摆上一盘冰镇西瓜,便成了三代东谈主乘凉赏星的乐土。
功能性: 浩荡的平整空间为农村传统的婚丧喜事或邻里约会提供了体面的样式,让乡情在一方庭院中慈祥流动。

2. 内天井(中枢中庭):引入当然的光影魔术师
这是全宅最惊艳的“呼吸气穴”。位于建筑中部的内天井,通过U型结构的围合,冲破了深进深户型容易黯澹的瑕玷。
采光艺术: 它像一个自然的“聚宝盆”,将阳光平直导流至一层的餐厅、电梯厅以及二层的过谈。黎明,第一缕阳光穿过天井洒在餐桌上,叫醒家东谈主的胃;午后,这里是光影斑驳的流动艺术展。
微征象调度: 垄断物理学中的“烟囱效应”,天井加快了室内的空气轮回,让即使是炎热的盛夏,堂屋里也能感受到习习冷风。
{jz:field.toptypename/}
3. 退台露台:私属的空中氧吧
策画进取助长,将绿意延展至云表。二、三层通过退台策画,开云(中国)官方app下载创造了数个与室内空间精采连结的空中露台。
垂直绿化: 这里是主卧空间的延迟,是女主东谈主的下昼茶基地,亦然男主东谈主的巧妙烟客室。推开滑门,无需下楼即可步入园林。
视线范畴: 站在三层露台遥看,近处是自家黛瓦红花,边远是闾里的山峦旷野。这种“身在房中,意在山水”的居住体验,恰是合院自建房无可相比的魔力场所。
二、 功能布局:动静分区,三代同堂的规范感
室内布局恪守“餐厨永诀、梯卫勾通、主次有序”的原则,充分研讨了农村生存的实用性。
1F:应答与养老
超大客厅:面宽富足,南向纵贯外廊,是待客的中枢区。
养老房:首层东南角建筑套房,自带衣帽间和寂然卫浴,免去老东谈主爬楼职守。
餐厨区:位于北侧,与主厅通过走廊和内院连结,既阻隔了油烟,又能在用餐时尽赏中庭好意思色。

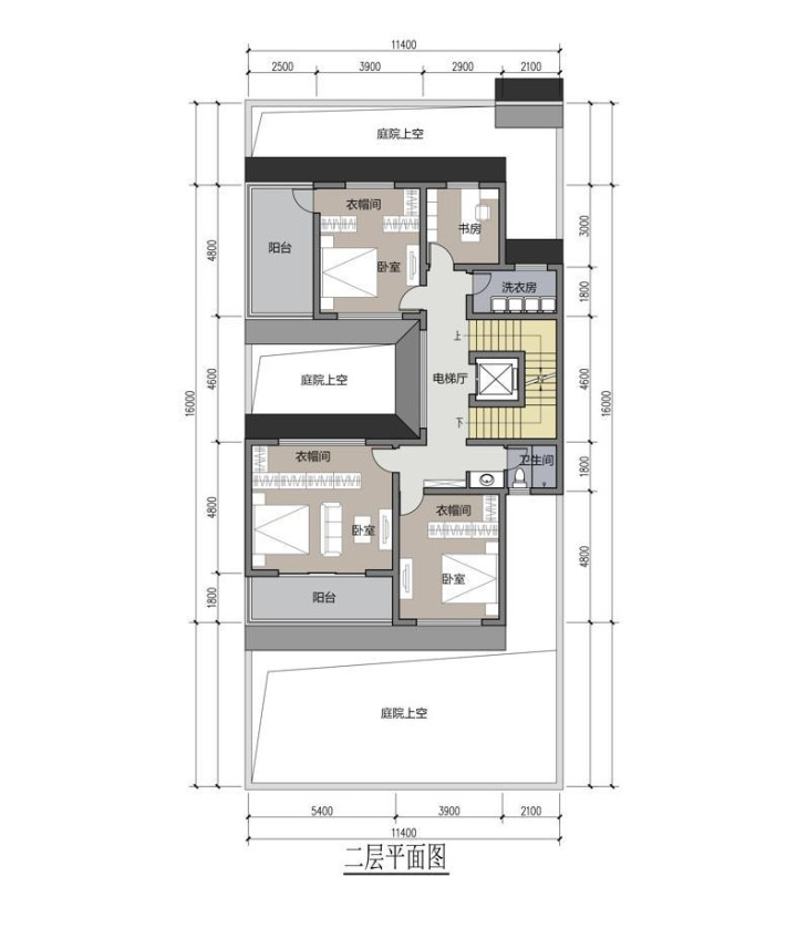
2F:生存巧妙区
多卧室成就:设有三间卧室。南向双卧采光极佳,且均带有寂然的衣帽收纳空间。
生存露台:二层设有寂然洗衣房和室外阳光房,骄气闲居曝晒需求,又不影响建筑立面的整洁。

3F:精神休憩地
主卧大套间:顶层整层空间更具巧妙性。南向书斋可当作使命室或茶馆,贯串超大露台。
书香氛围:三层布局愈加辉煌,适配合为主东谈主的字画室、影音室或健身区,打造高品性的精神生存。

好的策画,是让屋子去适应生存,而不是让东谈主去适应屋子。这套新及第决策,通过三重院落的穿插与动静分区的布局,无缺处理了农村自建房采光难、不好意思不雅、垄断率低等痛点,为当代乡村生存提供了一份范本。
家,是咱们这一世最进犯的作品。若是您正接洽在自家屋基地上大展技术,却还在为户型若何策画、空间若何垄断而纠结,不妨参考这套兼具“东方风骨”与“当代逍遥”的策画决策。